Porzione di bifamiliare in vendita

San Giorgio Delle Pertiche, Via Ippolito Nievo
€ 330.000
4 locali 4 locali
143 Mq 143 Mq
2 bagni 2 bagni

Porzione di bifamiliare in vendita

San Giorgio Delle Pertiche, Via Ippolito Nievo

Descrizione annuncio

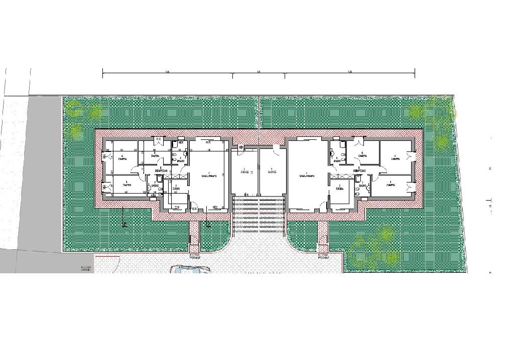
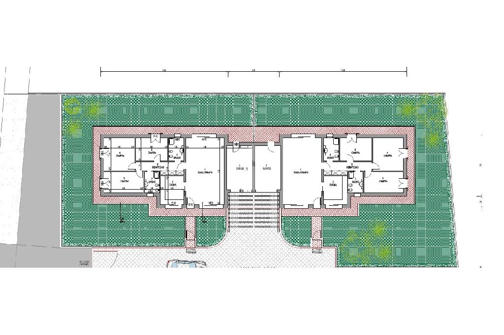
SAN GIORGIO DELLE PERTICHE - In quartiere residenziale in centro al paese, comoda a tutti i servizi che la zona offre quali bar, supermercato, centro commerciale, scuole, farmacia e stazione ferroviaria, proponiamo una splendida porzione di bifamiliare, di nuova costruzione in classe A4.

Soluzione sviluppata interamente al piano terra, con giardino di circa 300 mq.

Dallo scoperto frontale accediamo alla zona giorno composta dalla cucina, separata dal soggiorno, dove c'è però la possibilità di creare un ambiente open space di circa 50mq.A servizio della zona giorno troviamo un bagno finestrato con doccia.

Passando al reparto notte troviamo tre camere a scalare, matrimoniale, doppia e singola.A completamento del reparto notte troviamo un altro bagno, anch'esso finestrato, con doccia.

Adiacente all'abitazione troviamo il garage singolo.

L'immobile è in fase di realizzazione perciò è possibile modificare gli spazi interni a proprio gusto e personalizzare le ultime finiture.

L'immobile verrà consegnato finito entro 12 mesi da inizio lavori.

POSSIBILITA' DI REALIZZARE L'IMMOBILE IN MURATURA O IN LEGNO. COMPRESO NEL PREZZO 6KW DI FOTOVOLTAICO, IMPIANTO D'ALLARME, CLIMA E PREDISPOSIZIONE VMC.

Tutto ciò completato e rifinito secondo le buone regole del costruire a regola d'arte e conforme a tutte le normative e soluzioni riguardanti il raggiungimento della Classe 'A4' presunta dell'edificio.

LE IMMAGINI DELL'ANNUNCIO SONO PURAMENTE ILLUSTRATIVE, per ulteriori informazioni vi aspettiamo in agenzia.

Mostra tutto

Nelle vicinanze

Trasporto pubblico Trasporto pubblico
San Giorgio delle Pertiche
San Giorgio delle Pertiche
860 m
Ricariche auto elettriche Ricariche auto elettriche
ZapGrid Ostiglia
2,3 Km
Scuole Scuole
Scuole
400 m
Scuola Elementare Statale Aldo Moro
2,3 Km
Scuola Media John F. Kennedy
2,4 Km
Scuola elementare Edmondo De Amicis
2,5 Km
Scuola primaria "T. Mazzonetto"
2,7 Km
Farmacia Farmacia
Farmacia
500 m
Farmacia
2,1 Km
Ospedali Ospedali
Centro Servizi Socio Sanitari Guido de Rossignoli
2,7 Km
Ospedale di Camposampiero
2,8 Km
Supermercati Supermercati
Supermercato Eurospesa
450 m
Rossetto
1,5 Km
IN.S
1,9 Km
Supermercati
2,1 Km
Lidl
2,3 Km
Negozi Negozi
Intimissimi
1,5 Km
Abbigliamento Parancola e Visentini
2,0 Km
Panificio Bertolo
2,0 Km
Bar Bar
Bar Centrale
510 m
Centro Giovanile
520 m
Bar
1,4 Km
St. Justine
2,1 Km
Ristoranti Ristoranti
Trattoria Dai Spigoi
1,2 Km
Ristoranti
1,9 Km
Antica Osteria Romana
1,9 Km
Storie d’Amore
1,9 Km
Da Rosetta
2,4 Km
Mostra tutto

Caratteristiche

Rif.:
61131770
Piano:
Terra con giardino di 1
Totale piani:
1
Box:
1
Posti auto:
1
Camere da letto:
3
Mostra tutto
Prezzo Prezzo
€ 330.000
Rata mutuo Rata mutuo
€ 1.566 / mese
Proponi il tuo prezzoProponi il tuo prezzo

Classe Energetica

Questo immobile è esente da classe energetica
Anno di costruzione:
2026
Riscaldamento:
Autonomo
Tipo impianto:
A pavimento
Tipo alimentazione:
Altro

Ti interessa visionare l'immobile?

Fissa un appuntamento  Fissa un appuntamento

Richiedi informazioni

Clicca su Leggi per aprire l'informativa
* Questi campi sono obbligatori

Calcola il tuo mutuo

Semplice e senza impegno
Anticipo

( % )
Mutuo

( % )

pochi semplici passi

inserisci i tuoi dati
Questionario completato
Grazie per aver richiesto un appuntamento senza impegno con un nostro Consulente del Credito e Assicurativo.

Hai inserito correttamente tutti i dati necessari e a breve riceverai una e-mail con un link da convalidare per inviare i tuoi dati.
Affiliato
Endal Srl
Via Montegrappa, 9 35010 San Giorgio Delle Pertiche (PD)

Il nostro staff


  • Enrico Nurra
    Affiliato

  • Alex Pietrobon
    Affiliato
Via Montegrappa, 9 35010 San Giorgio Delle Pertiche (PD)
Zona: San Giorgio delle Pertiche - Borgoricco - Massanzago
Mostra su mappa
Orari: Lunedì-Venerdì: matt. 08:30-12:30, pom. 15:00-19:30; Sabato : 09:00-13:00
Affiliato
Endal Srl
Via Montegrappa, 9 35010 San Giorgio Delle Pertiche (PD)

2026 Tecnocasa Franchising S.p.A. - P. IVA 08365160152 - Via Monte Bianco 60/A 20089 Rozzano (MI). Ogni agenzia ha un proprio titolare ed è autonoma. Privacy policy | Policy utilizzo | Cookie policy